產品概述
美標高溫高壓鍛鋼閘閥主要適用于火力電站各種系統的管路上,可用于控制空氣、水、蒸汽、各種腐蝕性介質、泥漿、油品、液態金屬和放射性介質等各種類型流體的流動。鍛鋼閥門與其他閥門產品相比的特點是耐高溫高壓,獨特的自密封設計,壓力越高,密封越可靠。由于性能技術特性、工況的特殊使產品也形成了其他產品所替代不了的特點。
產品特點
1、殼體采用鍛造及鑄造兩種工藝選項,外觀光潔,組織均勻,滿足高溫高壓要求;視用戶需求可提供全系列全鍛鋼閘閥。
2、特殊材料配對,確保密封面高硬度及硬度差;精密研磨,光潔如鏡,耐磨耐蝕,有效延長使用壽命。
3、背密封設計,有效保護密封填料,杜絕跑冒滴漏。
4、高壓水強度,高壓氣體強度,無損檢測等多道檢測,全面控制承壓件質量。
5、閥桿表面經精密磨削及硬化處理,抗擦傷耐腐蝕,有效地減輕啟閉力矩,操作更輕松。
6、采用特殊緩蝕填料結構設計,耐溫耐壓,無腐蝕,自動潤滑,減輕啟閉摩擦,避免對閥桿表面的腐蝕,進而免除外漏。
7、雙向承壓密封設計,滿足各類特殊工況的苛刻要求。
8、嚴格手工配研,確保雙側密封面吻合度 90% 以上,實現氣泡級出廠密封檢測。
9、Z60 系列的閘板彈性槽設計,自動補償加工誤差,適應高溫工況,避免咬死; Z62Y 系列為雙閘板設計,閘板自動矯正加工誤差,始終保持密封面 100% 吻合度,特別便于用戶現場維修保養。

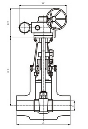
主要外形連接尺寸
| NPS | in | 8"(1500Lb) | 10"(1500Lb) | 12"(1500Lb) | 14"(1500Lb) | 8"(2500Lb) | 10"(2500Lb) | 12"(2500Lb) |
| A | in | 28 | 34 | 39 | 42 | 30 | 36 | 41 |
| B | in | 5-3/5 | 7-1/10 | 8-3/10 | 9-3/10 | 5-1/5 | 6-1/2 | 7-1/2 |
| H1 | in | 36-3/5 | 38-3/5 | 45-1/2 | 50-2/5 | 38-1/5 | 44-9/10 | 50 |
| H2 | in | 17-3/10 | 22 | 22 | 22 | 22 | 22 | 22 |
| W | in | 34-1/10 | 34-7/10 | 34-7/10 | 34-7/10 | 34-7/10 | 34-7/10 | 34-7/10 |
| 重量 | Kg | 1408 | 2532 | 3542 | 4532 | 2046 | 3190 | 4356 |